The new, high-standard, contemporary dwelling at Ballyedmonduff Road, Co. Dublin is now completed. The design was focused on taking advantage of the sloping site to provide our clients with wonderful view of Dublin bay. They can enjoy the astonishing views via huge east facing windows, while keeping the sense of privacy. The development consists of 310 square meters (~3300 sq ft) of living space provided at two levels, with two sea facing balconies and one rear terrace.
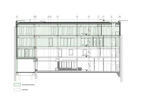
Project commenced on site with proposed additional floor and extension to an existing office building in Dublin city.
We are excited to announce the new, high-standard residential scheme in Malahide, North Co Dublin is now completed. The development consists of 1 detached (180sq.m. / 1900sq.ft.) and 8 semi-detached (156sq.m. 1670sq.ft.) houses.
For more details see the article in Irish Times
Source of photographs: www.irishtimes.com
We are happy to announce some of the 47 No. new residential homes in Malahide, Co. Dublin are approaching completion. This phase of the development consists of 8 No 2 storey semi-detached houses and 4 No. three storey semi-detached houses.
Source of photographs: Byron Creative
Streamstown Lane Malahide is a three-storey detached house with an area of approximately 450 square meters, designed for a private investor.
Planning Application lodged for a residential development in Co. Wexford.
Clairville Lodge is a residential development of 34 dwellings comprising 3 dwelling types of 4 and 5 bedrooms. The subject lands form part of Fingal County Council's Streamstown Local Area plan.
The demountable north and south stands are removed for equestrian events, with only the Grandstand and Angelsea Stand permanent. The Angelsea Stand was completed in 1927. The Grandstand was rebuilt in 2006 for the 2006–07 rugby season, to replace the old wooden stand when Leinster first became permanent tenants. A roof was added during 2008-09.
A residential development comprising 37 detached dwellings on lands which form part of the Ballyboghal local area plan. The dwellings are grouped around three separate landscaped open space areas with five distinct dwelling types.
Streamstown Wood is a luxury residential development in two phases comprising 44 dwellings with individual house types ranging from 350sqm-650sqm,with a centrally located landscaped zone as its centrepiece.
An office building within the Park Carrickmines comprising a four storey office building over basement parking with open plan office accommodation wrapped around a central atrium space, with individual retail units on the ground floor.
Residential development comprising apartments and duplex apartments in Dublin.
A contemporary dwelling of 160 sqm set within a sensitive and mature site at the end of a row of Edwardian houses. The project benefits from the use of contemporary materials with contrasting brick types to assist in the massing of the dwelling.
A speculative office development of six floors over basement car parking.The main elements of the building fabric comprise precast concrete panels with brick slips with glazed curtain wall insets. Each of the floor plates benefit from a dual aspect with glazing spanning floor to ceiling.